Pages
Home
"Before" pics
Floor Plans
Floor Plans
Main Floor existing
Main floor plan
2nd floor existing
2nd floor plan
3rd floor existing
3rd floor plan
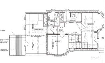
Basement plan
Home
Subscribe to:
Comments (Atom)